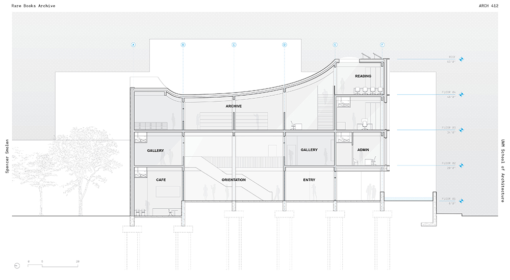
Spencer Smolen Spencer SpolenSpencer SpolenSpencer SpolenSpencer SpolenSpencer SpolenSpencer SpolenSpencer SpolenSpencer SpolenSpencer SpolenSpencer Spolen TitleDesign VIIILevelUndergraduateCourseArchitecture 412InstructorAmanda KochAll Student Work